∞∞∞∞■一級建築士設計製図試験チャレンジ奮闘記:エスキス編』∞∞∞∞∞∞∞∞∞∞∞∞∞∞∞∞《H24.10.26記》


 恒例の「E&A」スタッフによる「設計製図試験課題にチャレンジ」の実況が始まります。
今年は課題文を確実に入手でき、回答例を即日に掲載出来ました。改めて提供してくださった皆様に御礼申
し上げます。
   
 E&Aでは解答例とせず回答例としているのには、意味があります。
建築主(試験元)の依頼事項(課題文)に対して計画案を提示するのであって、問題を解くと言う気持
ちでは接していません。答えは1つではありません。回答案までの過程を楽しんでください。
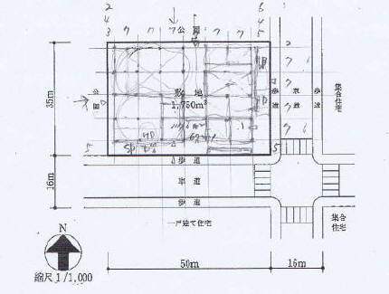
エスキス図 設計製図試験エスキス奮闘記・・・提供された課題文
課題文の要点整理(まずは、冷静になって課題文を整理しよう。)

A.設計条件

 「本施設は図書館機能に加え・・・様々な世代の住民の学習や交流の場と
 なるように計画する。」の文章が、計画の本筋となる。

 事前に学習してきた図書館の知識等を一旦白紙にして、与えられた 課題
 に沿って、学習や交流の場としてどのように計画するかがポイント。


               

B.敷地及び周辺条件

 敷地及び周辺条件は、敷地は平坦で同幅の2道路に囲まれた公園の一角と
 なっている。敷地形状は、道路を挟んだ東側は集合住宅地よりも、南側は
 一戸建て住宅地の方が間口の広い形となっている。

 同幅の道路の場合、どちらをメインにするかで今後の展開が違ってくる。
 一般的には敷地の間口が広い方をメインにした方がプランニングしやすい
 が、周辺の町並みも考慮する必要がある。→今後の展開による。

C.アプローチ・その他の施設計画





C.アプローチ・その他の施設計画

アプローチ設定
 敷地形状や周辺状況からはどの道路をメインと言い切れないところがある
 ので、まずは「E&A」が推奨しているメッシュスケールを敷地全体に掛
 けてみる。

 まず交差点と反対側の角から第1種住居地域だからゆとりを持って3mの
 空きでセットすると、東西に7mスパンが6個、南北に7mスパンが4個
 となり、空地は東側5m、南側4mとなる。→車椅子用駐車場を考えれば、
 空きは6mは欲しい。隣地の空きを2mにすれば、東側に車いす用が確保
 できそうだ。


 課題のアプローチ条件に公園側からのサブエントランス条件があり、これ
 が決めてとなるか?

 サブエントランスを西側では、4スパンの内1スパンがアプローチに使わ
 れてしまい、1階計画が遣り辛そうだ。北サブアプローチの方が6スパン
 も有り融通が利きそうだから、まず北側サブとしてみるか。

 北サブとすれば、南メインか?東サブ道路となると管理部門は北東の位置
 になる。留意事項の採光や日射の遮蔽を考えれば、西向きの図書室は避け
 たい。北側に広く図書室を設けるには管理部門を北東の位置は勿体ない。
 管理部門を西側に持って来れば解決か?→メイン東、サブ西で進めるか。



その他の施設
 駐車場はメインとサブ道路を仮決めしたので、東側来客用で南側がサービ
 ス用となる。それぞれ交差点から離れた位置に確保出来る。→ピロティや
 スパンを変えずに進められ、これから遣りやすそうだ。

※ここまでのイメージ造りは順調だ。アプローチから必然的に決まる要素か
 らゾーニングも見えてきた。後はボリューム的に旨く納まるかだ。

D.ボリューム検討

  グリッド   7m×7m
    1階   6×4=24G   (49u×24G=1,176u) 
    2階   6×4=24G   (49u×24G=1,176u)
  ───────────────────────────        
    合計       48G   (      2,352u)

  
  中間目標値
     1,800u+2,200u=2,000u

  吹抜け面積
       150u以上           

  床面積合計  2,352u−150u=2,202u≒許容最大値


D.ボリューム検討


 敷地からその他の施設スペースを確保して、残った部分が1階の最大建設
 可能グリッドとなる。→駐車台数が多いなどの場合は、ピロティもやむを
 得ないが、その他の施設は建物外で進め建物を単純形になるようにしたい。

 まずは整形の総2階建てが可能かを検討すると、目標中間値からは大幅に
 オーバーとなる。

 設計条件の吹抜けを考慮すれば、許容最大値近くにはなるが、どうにか納
 まりそう。→場合によっては2階屋上テラス等を設け中間値に近づくかも。


E.階の構想を検討





E.階の構想を検討

 アプローチやその他の施設から1階内部のゾーンが見えてくる。
 今年の課題はサブアプローチが有るために、メインとサブのエントランス
 で1階ゾーンが分断される。→集会部門の方が、小ホールや集会室、展示
 ギャラリーとそれぞれに独立性が高いので、分断されても影響が少ない。

 図書部門や小ホールは目的を持って利用される施設なので、2階に配置し
 ても利用状況に影響は少ないが、展示ギャラリーは2階に設けてしまうと
 利用しづらくなる。→交流の場となる展示ギャラリーは、この課題では積
 極的に1階の目立つ位置に計画したい。



 小ホールのある地域図書館が課題だから、一般論からは1階が図書部門、 
 2階が集会部門だろうと思う。しかし、以上の理由から1階に集会部門、
 管理部門、2階に図書部門の案も有り得るか検討してみる。

 今年の課題で、図書部門の閉架書架は地下1階に指定されている。
 地下1階に図書機能がある以上、図書部門が1階であろうが2階で有ろう
 が、いずれにしてもサービス用のEVを利用することになる。
 この点からも2階に図書館設置のハードルは低くなった。

F.各階のプランを検討





F.各階のプランを検討
<1階>
 南西の管理部門と続きになるように小ホール控室を西北に配置し、控室を
 含み小ホール関係を6グリッド確保し180席が可能か検討する。→客席
 部分4グリッドでOK。ステージと後方の控室等で2グリッド有ればOK。
 
 小ホールの東側にサブエントランスを配置。→サブなので1スパンより小
 さめにし、残りを小ホールのホワイエスペースに考える。

 北東4グリッドは会議室と展示ギャラリーで検討する。→展示ギャラリー
 はメインエントランスに面しオープンな空間で壁は無し。会議室は公園に
 面して2分割出来るよう廊下を含み2グリッド。独立した静かな空間にな
 るように廊下経由で入退室する。

 残りはメインエントランス周りの共用部の計画。→1階が集会部門でほぼ
 納まりそうだから、2階のほとんどが図書部門になりそうだ。2階図書館
 へは直ぐに誘導した方が良いから、EV・階段は出入口の直ぐそばに計画。

 共用・管理部門の詰め。→カフェが共用部扱いは分かるけど、特記事項が
 問題だ。貸し出し手続き前の書籍を閲覧だから、どうしても図書館と縁が
 切れない。???・・・2階で検討するか。
 作業室も図書部門でなくて共用・管理部門に分類されている?→裏方作業
 だから管理部門という事かな?運営上はサービスEVで図書館、閉架書庫
 と結び付く。動線上サービス用EVの位置が問題になって来るぞ。

 管理部門は、採光が必要な事務室、作業室、館長・応接室を窓側に配置し
 て、6グリッド有ればどうにかなりそうだ。

 残りは共用便所だが、EV・階段の位置を目立つようにしたいから2スパ
 ン使って扁平な便所とするか。


<2階プラン>
 2階は仮決めしたEV・階段が南面の東西両角に有るので、南側の1列が
 通路を含み共用的なスペースになりそう。→図書部門は北側に大きくまと
 まったスペースが確保できるので、割と自由に計画できそうだ。

 いや、吹抜があるからそう自由でもないかな?→吹抜は豊かな空間になる
 ように求めているので、何処に計画するかは慎重に検討がいるなぁ。
 1階エントランスの上部が常套手段だが、150uは結構でかい。エント
 ランスホールだけでなく展示ギャラリーの上部までのスペースになりそう
 だ。展示ギャラリーの上部が吹抜。これって、なかなか活けそう。展示ギ
 ャラリーがより活きてくる。

 吹抜がエントランス、展示ギャラリーの位置にあれば2階の東半分のスペ
 ースはそんなに広くない。→メインである一般開架スペース(300u)は西側、
 それも採光を考えて北側公園に位置した部分が良さそう。横並びに児童開
 架スペース3グリッド。

 吹抜を1階風除室の上部を含め4グリッド確保すると、児童室からの2方
 向避難が難しくなる。→屋外階段を設ければ済むが、東は正面だし北は公
 園で窓を塞ぎたくない。(試験を忘れて、通常の設計モードに入ったか)
 避難は最重要課題だから吹抜を西に少しずらして通路を確保しよう。

 図書部門の要のサービスカウンターはEVから分かりやすい位置にしたい
 し、管理部門とのつながりも重視したい。→レファレンスを兼ねるから長
 いカウンターが要りそうだ。

 読書室は動線の多い部分から離して静かな環境の位置に設けたいな。なお
 克つ一般開架から書籍を持ち込みやすい位置はと??一般開架に隣接した
 採光が取れる場所を1グリッドを検討。

 あれ、共用・管理部門に記入されていたカフェは何処だ!AVコーナーは!
 →ここまで1時間を経過。大いに焦る。結局、有る程度の減点を覚悟して
 カフェはカウンターの前の吹抜に面した位置に落ち着き、細部を決めるこ
 とにした。

G.各階のプラン




G.各階プラン


<1階>

 小ホール前席は1階レベルより1m下がっている。車椅子席は後方に設け
 るにしても、前席からの避難ルートがいる。車椅子を使わないまでも高齢
 者、弱者のためにスロープを確保した。(エスキス段階では1/12勾配とし
 たが、最終的には管理部門とゾーンを明確にするためにスロープが短くな
 り1/10となった。車いす用でないからOKか。)


 事務室は作業室と並んで1グリッドずつとした。便所の壁のラインとの段
 差を利用して受付カウンターを設けた。→図書部門のサービスカウンター
 が2階に配置され、建物のセキュリティを考えると必要な事かと思う。


 小ホールの西側の一部を空調機室に考えていたが、閉架書庫が地下1階に
 有ることを思い出し、地下2階の避難のために最終的には階段を設けた。









<2階>

 2階カフェが揺れ動いている。この時点では共用部門の要件がどこかに飛
 んで行っているようだ。(後で気が付き、出来るだけ共用部門に見せよう
 と努力した。)


 最後に耐力壁の検討をしてみた。→建物外周部は設けても差し障りの無い
 ところがあるが、内部はなかなか難しい。無理して設けて計画を壊す事は
 避けたい。




 最後に詰めが甘くなったが、今思うとカフェとカウンターを入れ替えれば、
 共用部を主張できて良かったとつくづく思う。
 (時間内の試験だからこそ、何処かで妥協し納めなければならない。その
  中で最善を尽くす事ですねぇ。)

 この後、試験日に発表したフリーハンドのエスキス図に発展しますが、
 CAD図を含め少しずつ修正しています。


 エスキスにはPILOTのFRIXIONペンを使用しました。鉛筆より
 動きが滑らかですし、消してもゴミが出なく進めやすいでした。


                          


∞∞∞∞∞∞∞∞∞∞∞∞∞∞∞∞∞∞∞∞∞∞∞∞∞∞∞∞∞∞∞∞∞∞∞∞∞∞∞∞∞∞∞∞∞∞∞∞∞∞∞∞∞∞∞∞
◆今日はここまでとします。

 受験者の皆さん試験は如何でしたか。日頃の力が発揮できたでしょうか。例年課題にチャレンジしていますが、
 時間に追われる試験は苦手です。毎年取り組んで慣れていると云っても、やはり焦るし、日頃偉そうなことを
 言っている手前、稚拙な計画は恥ずかしいと結構プレッシャーが掛かります。

 今年の課題は制約が少なく、自由に色々な発想で計画できたのではないでしょうか。私の東側メインアプロー
 チは、金太郎飴のように1つの解答例を指導されてきた皆さまにとっては、マニュアックな扱いのようですが、
 建築の計画は決して1つではありません。

 試験方法が変化しているのに、各資格指導校が画一的な答えを導き出すように指導しているのが気になります。
 同じ条件でも、もっと自由に発想し計画できるのに本部からのマニュアル通りに導く方法は、現場の講師陣も
 困っているのではないでしょうか。

 各指導校では、「我が校では、第○課題で類似の課題を取り上げた。」と受験対策が万全だったと誇示してい
 ます。「下手な鉄砲、数打ちゃ当たる。」の例えのように、現実離れしたような色んなパターンを学習させる
 ことで保険を掛けているようです。受験者の皆さんは高い授業料を払わせられているのに、更に無駄な労力を
 払わせられているようです。もっと基本を教えろ!

 
◆結果発表までにしばらく間があきますが、皆さんどう過ごしますか。建築の勉強はテキストや製図板に向かう
 だけではありません。生の建物を見ましょう。接しましょう。そして、建築を愛しましょう!

∞∞∞∞∞∞∞∞∞∞∞∞∞∞∞∞∞∞∞∞∞∞∞∞∞∞∞∞∞∞∞∞∞∞∞∞∞∞∞∞∞∞∞∞∞∞∞∞∞∞∞∞∞∞∞∞
■  Topへ                               ■  計画の要点のポイントへ